- 项目信息
- 项目名称|缦山初海时
- 项目地址|云南 大理
- 项目状态|已建成
- 项目业主|缦山民宿
- 全案设计|长空创作
- 机构官网|https://www.ckcz.cn/
- 设计主创|张宝华
- 参与设计|李泉江 张定远 周林华 王瑞
- 项目监制|刘思唐
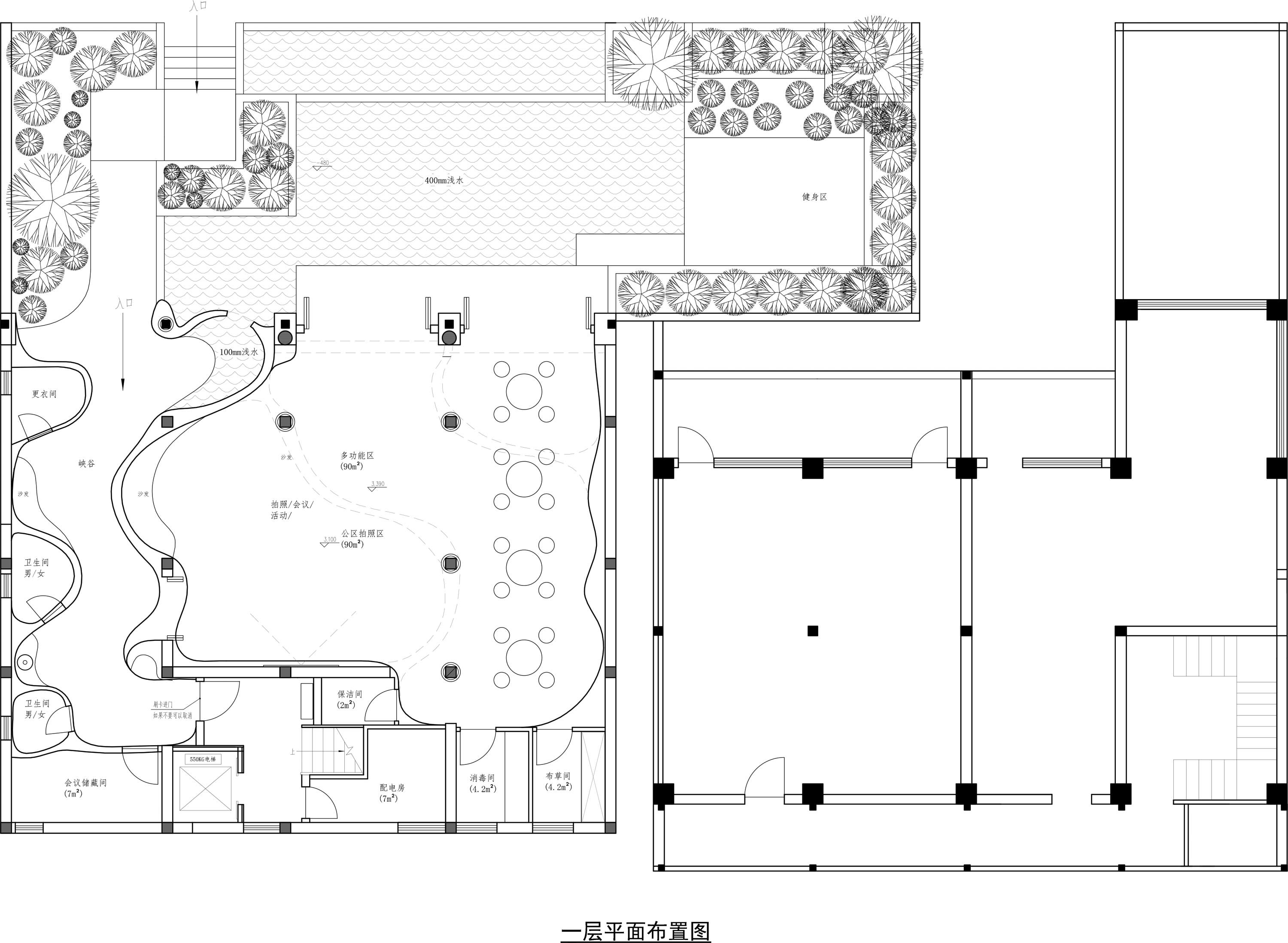
- 设计面积|1985㎡
- 设计时间|2023.05
- 竣工时间|2024.04
- 项目摄影|王思辰
-
洱海苍龙现,落笔成字化为村。
名曰“文笔村”,此项目位于大理文笔村。 -
可遥望苍山洱海,古城在翻云吐雾间。
淡淡如烟似仙境,有诗题记。
我居北海君南海,寄雁传书谢不能。
桃李春风一杯酒,江湖夜雨十年灯。 -
-
-
-
-
-
风逐花,诗情散落软软天盘中。
剑洗雨,斩不断情雾绵绵。
璀璨俗世曲曲折折,云水流觞。
剑斩落霞,揉成纁(xun)黄。
染遍这曲曲折折,便豁然开朗。 -
-
-
-
-
引光入室,沉木刻痕,雨后又有多少江湖事初现。
剑走红尘里,落茶不夜城,避世缦山中。 -
-
-
-
半山沐雨,云气如仙。
暗香藏风,不惊听雨声。
初霞雨后晴空,千鹤排云上,小楼隐碧霄。 -
-
-
-
-
木聚成桌,点缀了荔肉白的墙。
西窗如画,天圆地方。
穿梭于镜头之间,天水共色。 -
-
-
-
对饮这般天色,苍龙隐于浮云。
星月藏于暮霞,你我居于缦山。 -
-
-
-
-
-
-
日沉西窗,疏影斜斜,光飘落于四壁之间。
随之窅(yao)然而去,别有天地,犹如仙境。 -
-
-
琴弦刻门岁月深,伴点星辰做柜门。
玄木旧痕,平安桌上,时无英雄。
只有共揽洱海月,共枕一梦。 -
-
-
-
墙有曲折如穴,冰肌玉骨,自清凉无汗。
光随着墙弯曲慢慢延伸,穴池满水色如光,水洞风来暗满香。 -
-
-
卧看灯火阑珊,回廊烟雨。
木构为骨,千年凝聚。
回首床前,星萃木留痕。
点点滴滴汇聚成诗。 -
-
-
-
床前沐浴出景,浅淡春山。
娇柔柳腰,海棠醉日。
对饮苍山,钟灵毓秀,欲醉不还。
落晖苍雪,树树如秋。
洱海流云,薰风入弦。 -
-
-
摘星辰,又恐惊仙人。
船载清梦渡星海,复醒才知天在水。
仙醉把白云揉碎,扶于琼楼玉顶。
百花癞于浮云之间,暗香消魂卷风中开得烂漫。 -
-
花间风笛,案上品茗,晓看天色暮看云。
行云间,只见分花拂柳。
浮香绕云间,不远不近的欣赏。 -
-
其素若何,春梅绽雪。
其洁若何,秋菊被霜。
其静若何,松生空谷。
淡淡的喜欢,不至于乱了初心,败了芳华。 -
-
-
-


全部评论(0)
还没人评论,赶紧抢占沙发